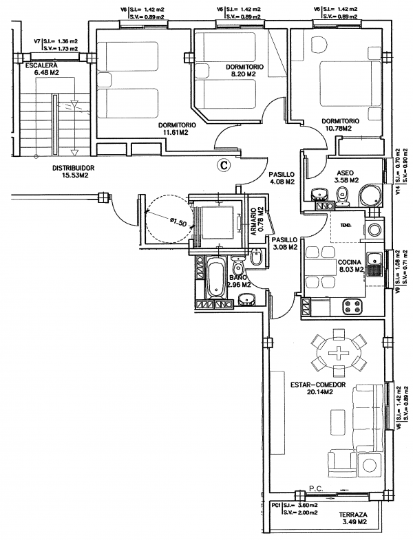
Piso 2º C

Reservado

  • Superficie: 82,89 m2
  • Estado: De nueva construcción. Sin usar.
  • Habitaciones: 3.
    • Todas exteriores.
    • Dos de ellas con armarios empotrados de obra.
  • Baños: 2.
    • Uno con ducha, otro con bañera.
  • Cocina amueblada: No.
  • Terraza: Si.
    • De 3,5 m2 aproximadamente.
    • Con vistas a la ría de Corme y Lage.
  • Ascensor, trastero y garaje: Si.
  • Orientación: Este-Oeste.
    • Le da el sol todo el día. Por la mañana en el salón y por la tarde en las habitaciones.
  • Contacto: pisoscorme@gmail.com



  • doc/house/nuevo/tecelan2c/inicio.txt
  • Última modificación: 2025/08/31 10:38
  • (editor externo)